Artigos
Como anular o ruído
Publicado em 29/12/2015
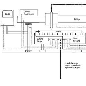
A faísca de alta tensão necessária para criar um arco piloto em sistemas a plasma gera ruído elétrico de rádio frequência (RF) que pode interferir na operação de equipamentos elétricos próximos. Obtenha recomendações sobre aterramento e aterramento de ruído. Leia mais
O custo real de cortar metal
Publicado em 29/12/2015
O custo real da sua operação de corte somente poderá ser entendido ao observar o grau de produtividade que o seu sistema de corte lhe oferece e qual o custo da operação ao longo do tempo. Leia mais
Curta-nos
Veja-nos
CONECTE-SE CONOSCO